
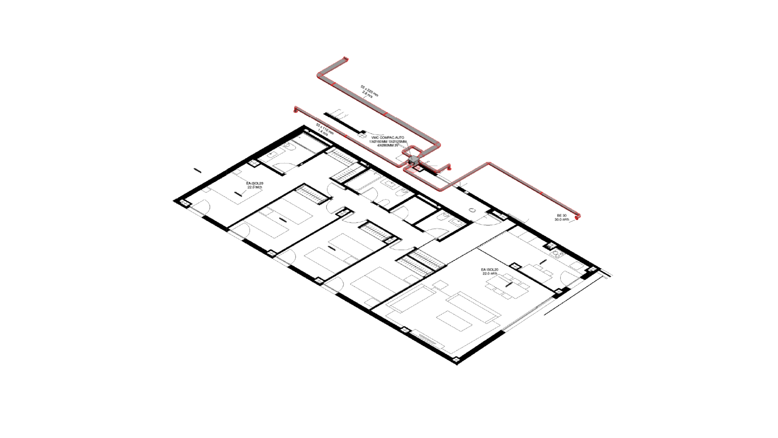
1
Toma de aire fresco
2
Equipo de ventilación
3
Redes de distribución
4
Bocas de extracción
5
Expulsión de aire viciado
Una solución práctica para edificios plurifamiliares que priorizan la funcionalidad y la eficiencia. Cada vivienda cuenta con un sistema autorregulable independiente que garantiza un flujo constante de aire fresco, adaptado a sus necesidades. Este diseño elimina interferencias entre unidades, asegurando privacidad y mejorando la calidad de vida de los residentes con un mantenimiento mínimo.
Ejemplos estudios con BIM

